Auction date
24.3.2026
Property type
Apartment
Estimated value
CHF 1'200'000.-
Standort
Hardstrasse 90 5432 Neuenhof, AG
Auction
- Auction date
- Tuesday, March 24, 2026
- Time
- 14:00 o'clock
- Location
- Peterskeller, Zürcherstrasse 89, 5432 Neuenhof
Property
- Property number:
- 73, 74
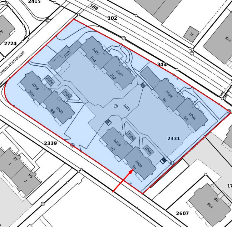
- Master plot:
- 2331
- Land register:
- Neuenhof
- Link to plan:
- GIS- Canton of- AG
Features
- Number of rooms:
- 5½
- Floor:
- attic
- Usable area:
- 140 m2
- Underground parking lots:
- 4
Values
- Official estimate:
- CHF 1'200'000.-
- Down payment:
- CHF 100'000.-
More details and other auctions
On AuctionHome.ch you can find more details about this auction and all bankruptcy and debt collection office property auctions in SwitzerlandCompetent office
Betreibungsamt NeuenhofZürcherstrasse 107
5432 Neuenhof
Neuenhof AG
(wikipedia.org)
| Neuenhof | |
|---|---|
| Staat: | |
| Kanton: | |
| Bezirk: | Baden |
| BFS-Nr.: | 4034 |
| Postleitzahl: | 5432 |
| Koordinaten: | 667120 / 255303 |
| Höhe: | 412 m ü. M. |
| Höhenbereich: | 357–702 m ü. M.[1] |
| Fläche: | 5,38 km²[2] |
| Einwohner: | 9212 (31. Dezember 2024)[3] |
| Einwohnerdichte: | 1712 Einw. pro km² |
| Ausländeranteil: (Einwohner ohne Schweizer Bürgerrecht) |
52,5 % (31. Dezember 2024)[4] |
| Gemeindeammann: | Martin Uebelhart |
| Website: | www.neuenhof.ch |
Sicht von Wettingen über die Limmat auf Neuenhof
| |
| Lage der Gemeinde | |
Disclaimer
All content is provided for informational purposes only and no representation or warranty is made as to its accuracy or completeness. Property descriptions, documents and images may not describe the property exactly. You are encouraged to exercise your own due diligence and seek independent professional advice as necessary.
This data comes from the Official Journal portal (shab.ch). This is not an official publication. The data in the Official Journal portal provided with an electronic signature or seal by SECO are authoritative.
This data comes from the Official Journal portal (shab.ch). This is not an official publication. The data in the Official Journal portal provided with an electronic signature or seal by SECO are authoritative.

